Прием звонков: Пн-Пт: с 8.00 до 21.00
Сб,Вс: с 9.00 до 18.00
(Бесплатный звонок по России)
Ваш Регион: Волгоградская область
Ваш город: Котельниково
Изменить город:

ГлавнаяПроектыМодульные здания → Дачный модульный домик из 2-х шт БК

Дачный модульный домик из 2-х шт БК

Сроки строительства: февраль 2016г.
Населенный пункт: Сочи
Адрес доставки: Краснодарский край, г.Сочи
Заказчик: Физические лица
Стоимость проекта (цена): узнать стоимость

Заявка 26

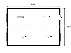
Блок - контейнер  БК  6,0*4,8*2,5 – 1шт.          

Комплектация:

§   металлический каркас: швеллер 100мм, усилен уголком 63мм.,цвет синий;

§   кровля плоская сварная, металл 1,0 мм, грунт-краска,

§   утеплитель 50мм: стены, пол, потолок;

§   ветро-гидроизоляция-пленка ПВХ 80мкр: стены, пол, потолок;

§   внешняя отделка: оцинкованный  профлист С8 0,4мм., с полимерным покрытием(цвет белый RAL-9003 ).

§  окно ПВХ двухкамерное, поворотное-откидное-700*900мм. - 3шт.;

§  входная дверь металлическая Россия «Эконом», утепленная с врезным замком -1шт.;

§  отделка внутренняя: стены – панели МДФ(цвет светлый дуб) , потолок –вагонка ПВХ;

§  пол: ДСП 16 мм., линолеум, плинтус ПВХ.

§  дно: металлическое 0,5мм. – В ПОДАРОК!

§  электрика в кабель-канале(усилен.): 3-х жильный провод, свет-к  LE  2х20/18 ECO IP40, ЭПРА (10) (LEEK) -4шт.; выключатель одноклавишный -2шт.,розетка двойная – 3шт.; автомат на розетки (25 А), автомат на освещение (10 А);

Монтажные работы:

- установка БК;

- монтаж БК в блок модуль;

- сварка кровли сплошным швом и обработка спецмастикой;

- монтаж электрики;

- нащельники - фасонные изделия,;

Доставка  в г. Сочи.

Сроки изготовления: 7-10 рабочих дней.

Фундамент (площадку) и разгрузку товара Покупатель  производит самостоятельно.


Дачный модульный домик из 2-х шт БК
Дачный модульный домик из 2-х шт БК
Дачный модульный домик из 2-х шт БК
Дачный модульный домик из 2-х шт БК
Дачный модульный домик из 2-х шт БК
Дачный модульный домик из 2-х шт БК
Дачный модульный домик из 2-х шт БК
Дачный модульный домик из 2-х шт БК
Дачный модульный домик из 2-х шт БК
Дачный модульный домик из 2-х шт БК

Для того, чтобы узнать стоимость проекта, заполните форму ниже:

Узнать стоимость этого проекта

ОШИБКА:
Заполните, пожалуйста, все поля корректно!
Спасибо!
Ваш запрос отправлен, через некоторое время с Вами свяжутся!
Представтесь(ФИО)*:

Телефон*:

Город доставки*:

E-mail*:


Нажимая на кнопку, вы даете согласие на обработку персональных данных
* - поле обязательно для заполнения.
Назад